Fehérgyarmat, Ipari park
- 5980 ㎡
 -  Ágy
 -  Fürdő
 
						Ingatlan Áttekintése
- Terület5980 ㎡
 - VárosFehérgyarmat
 - OrszágMagyarország
 - MegyeSzabolcs-Szatmár-Bereg
 - Építés Éve1980
 - Ingatlan StátuszEladó/Kiadó
 - Ingatlan TípusaIpari
 
Ingatlan Leírása
Terület ismertetése:
5 ha 5980 ㎡ területnagyságú telephely megnevezésű ingatlan.
A területen több épület áll a mellékelt helyszínrajz alapján.
A földterület sík, szilárd burkolatú belső úthálózattal, melyről az aszfaltos közút elérhető.
Vezetékes víz van, 1 db mérőórával, innen vannak ellátva az épületek.
Csatorna és elektromos hálózat kiépítve, 1 db 10 A-es a portásfülkénél, és 1 db 3 x 150 A az épületek ellátásra.
Vezetékes földgáz kiépítve, 1 db kazánházzal, ahonnan az épületek ellátása történik.
Fűtése központi fűtés, radiátoros hőleadókkal.
Övezeti besorolása : GKSZ-2 Gazdasági, kereskedelmi, szolgáltató övezet.
Épület ismertetése:
Az épületek kialakítása és használata szerint összeszerelő műhely, valamint faipari üzem és központi irodaház.
Gyártás és összeszerelés folyik az épületekben, melyeknek a kialakítása egyéb, más funkcióval való hasznosítását is lehetővé teszi.
Építésekor, 1980-as években mezőgazdasági telephelyként üzemelt.
Hagyományos szerkezetű épületek, tégla falazattal, vasbeton födémmel, valamint vázas szerkezetű épületek. A felépítmény állomány az 1990-2000-es évek között lett felújítva, korszerűsítve valamint 2 db új épület készült.
Fűtése központi, radiátoros hőleadókkal ellátva.
Vezetékes elektromos energia / ipari áram kiépítve, vezetékes ivóvíz hálózat kiépítve, szennyvízkezelés megoldva.
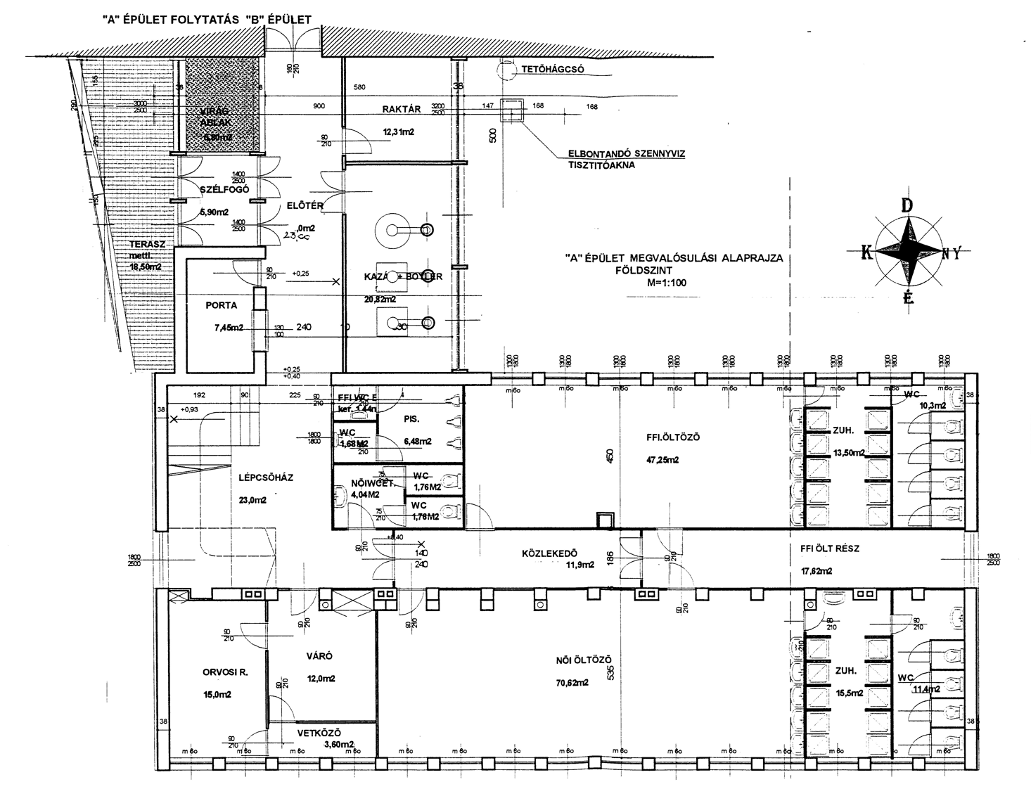
A épület (0134/11 hrsz.)
Hasznos alapterület összesen: 657 ㎡
Hagyományos kétszintes épület, jó műszaki állapotban. Jelenleg irodaház, többfunkciós céllal hasznosítható.
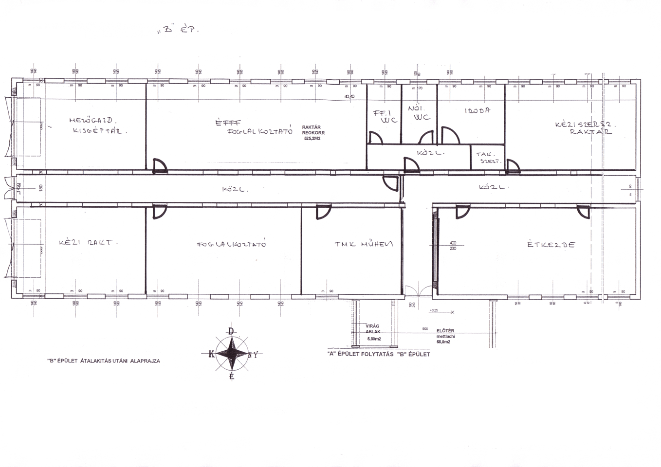
B épület (0134/11 hrsz.)
Hasznos alapterület összesen: 515 ㎡
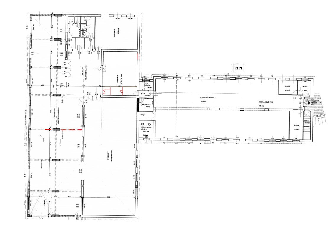
C-D épület (0134/12 hrsz.)
C épület
Hasznos alapterület összesen: 361 ㎡
D épület 
Hasznos alapterület összesen: 408 ㎡
E épület (0134/12 hrsz.)
Hasznos alapterület összesen: 1072 ㎡
F épület (0134/11 hrsz.)
Hasznos alapterület összesen: 733 ㎡
G épület (0134/11 hrsz.)
Hasznos alapterület összesen: 733 ㎡
Ingatlan Jellemzői
- Biztonságtechnikai kamera rendszer
 - Erkély
 - Fürdőszoba
 - Hálószoba
 - Internet
 - Ipari áram
 - Parkolási lehetőség
 - Számítógép
 - Számítógép hálózat
 - Tűzjelző rendszer
 - Wi-Fi
 
					














