Dorog, Hantken Miksa utca 13. HRSZ: 1518/47/C
- 1958 ㎡
- Ágy
- Fürdő
Ingatlan Áttekintése
- Terület1958 ㎡
- VárosDorog
- OrszágMagyarország
- MegyeKomárom-Esztergom
- Ingatlan StátuszEladó/Kiadó
- Ingatlan TípusaIpari
Ingatlan Leírása
Dorog, Hantken Miksa u. 13. hrsz.: 1518/47/C
Egyéb terület megnevezésű ingatlan.
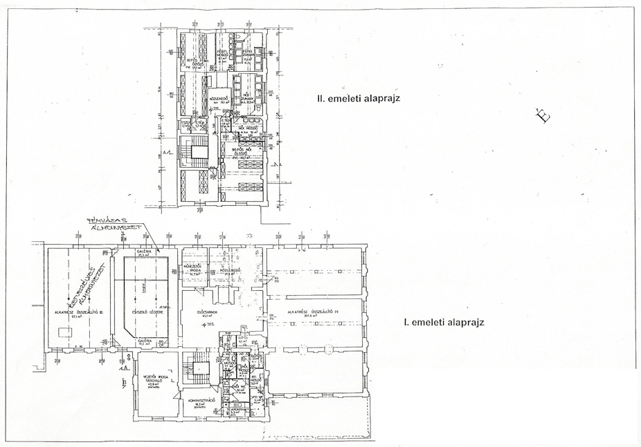
Telek területe: 1958 ㎡ Épület területe: Földszint: 840 ㎡ Emelet: 240 ㎡
Terület ismertetése:
Dorog, 1518/47/C hrsz-ú, 1958 ㎡ terület nagyságú, ipartelep megnevezésű területen található a 1518/47/C jelű épület, földhasználati jogalapján, melynek beépített területe: 1 015 ㎡. Többszintes épület. Pinceszint, földszint, I. emelet, II. emelet.
A földterület sík, szilárd burkolatú, közvetlenül az aszfaltos közút határán fekszik.
Ipari áram, vezetékes vízhálózat, szennyvízcsatorna, földgázhálózat kiépítve.
Fűtése központi fűtés, radiátoros hőleadókkal.
Övezeti besorolása : GKSZ-2 Gazdasági, kereskedelmi, szolgáltató övezet.
Épület ismertetése:
Az épület kialakítása és használata szerint faipari üzem. Az épület csarnok részén több helyen elektromos lecsatlakozás por elszívó rendszer ki van építve. Árurakodás két irányból megoldott, rámpás kialakítással. Raktározási, valamint szociális és irodai blokk kialakítva.
Hagyományos szerkezetű, karbantartott épület.
Ingatlan Jellemzői
- Biztonságtechnikai kamera rendszer
- Fürdőszoba
- Internet
- Ipari áram
- Kávéfőző
- Parkolási lehetőség
- Számítógép hálózat




