Dorog, Hantken Miksa u. 3. hrsz.: 1518/13
- 1121 ㎡
- Ágy
- Fürdő
Ingatlan Áttekintése
- Terület1121 ㎡
- VárosDorog
- OrszágMagyarország
- MegyeKomárom-Esztergom
- Építés Éve1930
- Ingatlan StátuszEladó/Kiadó
- Ingatlan TípusaIpari
Ingatlan Leírása
Dorog, Hantken Miksa u. 3. hrsz.: 1518/13
Épület és udvar megnevezésű ingatlan.
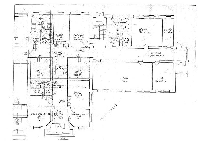
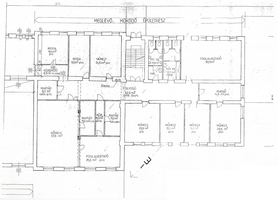
Telek területe: 1121 ㎡ Épület területe: Földszint: 420 ㎡ Emelet: 420 ㎡
Terület ismertetése:
Dorog város belterületén, a város központjában található. Aszfaltos burkolatú, városi belső úthálózat mentén fekszik, jelentős méretű utcai homlokzattal, intézmények, üzletek, lakóingatlanok közelében. Övezeti besorolása: GKSZ –gazdasági, kereskedelmi, szolgáltató.
Épület ismertetése:
Épült 1930 körül. Kétszintes, -földszint + emeletes épület. Magastetős, tetőtér beépítés nélküli, palafedéses épület, födémei vasbeton, illetve poroszsüveg boltozatos, homlokzata kőporos felületképzésű, ajtó és ablakai fa anyagú, típus szerkezetűek. Fűtése központi, gáz üzemű, Termotéka kazánnal, radiátoros hőleadókkal. Melegvíz ellátás gázkazán és villanybojlerrel.
Energia ellátás: 3x80A (közös hálózaton és fogyasztásmérővel az 1518/45 hrsz.-ú ingatlannal)
Víz-csatorna kiépítve
Kizárólag a 1518/13-as hrsz. számú ingatlannal együtt eladó vagy kiadó!
Ingatlan Jellemzői
- Fürdőszoba
- Internet
- Ipari áram
- Lift
- Parkolási lehetőség



